AMANTE
HALL BANQUET

품격에 맞는 연회장아망떼 홀

문의
Professional Space 미팅과 세미나에 특화된 실속 있는 공간

대구에는 없었던, 그래서 불편했고 서울과 부산에서만 봐왔던 5성 호텔의 프리미엄 뷔페, 이제는 거꾸로 전국에 자랑하고 싶은 곳. 전국에서 찾아오는 국내 최대 규모의 초특급 더 뷔페 앳 인터불고가 우리 곁에 왔습니다.

Support Equipment

빔프로젝터 7,300 ANSI 레이저형
현수막 5.25m x 0.7m
스크린 4m x 3m(160인치)

연회장 상세

위치
본관 2F
규모
AREA 9m x 15m ( 135m² )
height 3.6m
연출

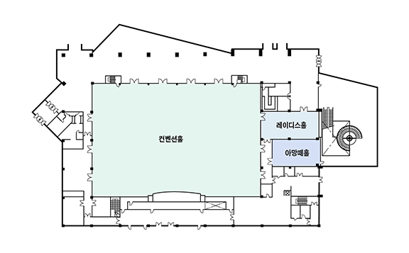
Floor Plan

아망떼 홀 도면 download
평면도 download